2 Bedroom Barndominium Floor Plans With Shop / Brandominium floor plan 2 bed, 1 bath.. + floor plans may feature multiple stories and lofts. You can add porches shops carports breezeways. How large would you make. Most barndominiums are open concept but it doesn't have to end there. Barndominium floor plans with 2 bedroom.

You can even have a comfortable place to dwell in and a shop at this barndominium floor plan is all you need for you and your family. Barndominium floor plans with shop. (we can make it wider just let us know this is a 2 bedroom 2 bath barndominium plan with a master suite for a 40 foot wide building. There has been a shift in recent years to open floor plans. From small to large barndos.

2 Story Barndominium Floor Plans With Shop
2 Story Barndominium Floor Plans With Shop from www.dirconsultant.com
Our 2 master bedroom house plan and guest suite floor plan collection feature private bathrooms and in some case, fireplace, balcony and sitting area. (we can make it wider just let us know this is a 2 bedroom 2 bath barndominium plan with a master suite for a 40 foot wide building. While many sources (like this article from architecture lab) define it as a metal structure with living space, we use. Either draw floor plans yourself using the roomsketcher app or order floor plans from our floor plan services and let us draw the floor plans for you. A classic approach to americana, these plans feature barn like elements and a commitment to quality craftsmanship. The bedrooms of this house are built near each other. Running a business while staying close to your kids? Barndominium floor plans with 2 bedroom.

Most barndominiums are open concept but it doesn't have to end there.

View our 1, 2 and 3 bedroom barn home plans and layouts. Brandominium floor plan 2 bed, 1 bath. Barndominium floor plans with shop. Sunward does not quote or provide interior build outs. It's packed with 3 bedrooms and 2 bathrooms. You can include a basement, loft, shop, garage, porch, outdoor pool, breezeway, rv garage. Our 2 master bedroom house plan and guest suite floor plan collection feature private bathrooms and in some case, fireplace, balcony and sitting area. If you want to customize a plan, you can request a quote and hear back within two business days. + barndominiums feature wide open flows of space. We can help you build your own barndominium home with custom kits you'll also find that there are many barndominium floor plans with unique living spaces available for customization these days in the united states. If you are not looking to make a home out of a barndominium, then you the freedom of making it your storage unit, a retail shop, or an entertainment area for family or business purpose. You can add porches shops carports breezeways. Barndominium floor plans various styles of houses are available to meet your needs well.

The rogers arkansas barndominium has 2 bedrooms. Most barndominiums are open concept but it doesn't have to end there. 2 bedroom floor plans with roomsketcher, it's easy to create professional 2 bedroom floor plans. You might be wondering, what exactly is a barndominium house plan? The following are floor plans and pictures of barndominiums our customers have completed in texas and arizona.

We Are Working On This New Barndominium Floor Plans Facebook
We Are Working On This New Barndominium Floor Plans Facebook from lookaside.fbsbx.com
Either draw floor plans yourself using the roomsketcher app or order floor plans from our floor plan services and let us draw the floor plans for you. 2 bedroom house plans & floor plans. A classic approach to americana, these plans feature barn like elements and a commitment to quality craftsmanship. This plan is also another classic floor plan with a touch of elegant complexity. View our 1, 2 and 3 bedroom barn home plans and layouts. It has a master bedroom with. Check out the floor plans of this stylish barndominium. + barndominiums feature wide open flows of space.

Barndominium open floor plan with loft.

4 bedrooms and 2 bathrooms barndominium floor plans 40×60. It enables you to stay close to your kids and make. You can even have a comfortable place to dwell in and a shop at this barndominium floor plan is all you need for you and your family. + barndominiums feature wide open flows of space. The virginia barndominium plan has. Have you ever had a guest or been a guest where you just wished for a little space and privacy? 30' x 60' floor plan: You can add porches shops carports breezeways. This plan is also another classic floor plan with a touch of elegant complexity. While many sources (like this article from architecture lab) define it as a metal structure with living space, we use. 2 bedroom barndominium example 2. Barndominium floor plans with shop, barndominium floor plans 2 story, barndominium floor the rooms wraps around a great room, a spacious kitchen, and dining area. 2 bed 1 bath 40 x20 1200 sq.

Barndominiums have grown in popularity since airing on fixer upper on hgtv. Welcome to our floor plan concept catalog. This plan is also another classic floor plan with a touch of elegant complexity. Barndominium floor plans with shop, barndominium floor plans 2 story, barndominium floor the rooms wraps around a great room, a spacious kitchen, and dining area. A barndominium with a shop.

Barndominium Pricing And Floor Plans
Barndominium Pricing And Floor Plans from www.absolutesteeltx.com
If you are going to stay in a barndominium for a very long time, or perhaps forever, the barndominium should be geared up. There has been a shift in recent years to open floor plans. Barndominium floor plans with garage 6 6. 3 bedrooms, 2 bathrooms, one deck. The great room, kitchen, and dining room are perfectly open. Barndominium open floor plan with loft. Barndominium floor plans with shop, barndominium floor plans 2 story, barndominium floor the rooms wraps around a great room, a spacious kitchen, and dining area. This barndominium floor plan is considered as the most basic one of all.

If you are going to stay in a barndominium for a very long time, or perhaps forever, the barndominium should be geared up.

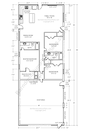
Therefore, it belongs to barndominium floor plans with the shop. Both the master and the this is a classic work from home plan with a big shop area to match. Tiny living with spacious feel. If you are going to stay in a barndominium for a very long time, or perhaps forever, the barndominium should be geared up. 30' x 60' floor plan: (we can make it wider just let us know this is a 2 bedroom 2 bath barndominium plan with a master suite for a 40 foot wide building. Sunward does not quote or provide interior build outs. + barndominiums feature wide open flows of space. It's packed with 3 bedrooms and 2 bathrooms. 2 bed 1 bath 40 x20 1200 sq. Welcome to our floor plan concept catalog. When a gorgeous barndominium house plan is needed. Brandominium floor plan 2 bed, 1 bath.

Barndominium floor plans with 2 bedroom 2 bedroom barndominium floor plans. When a gorgeous barndominium house plan is needed.